VILLA CHÂTEL
VD / 1618 Châtel-St-Denis
Type de construction
Villa
Statut
Projet réalisé
Projet
2010
Photos
Nathalie Racheter
Partager
Voir le pdf
PRÉSENTATION
Jeu de volumes minéraux sculptés et décalés. La parcelle se situe en limite nord d’un nouveau quartier résidentiel, en bordure d’un ruisseau et de pâturages, dans les hauteurs de la ville
de Châtel-St-Denis.
Le projet s’imprègne du lieu et se construit avec son environnement naturel et bâti, largement ouvert côté ruisseau et vue, il se referme côté accès et village. Le volume est travaillé, découpé, sculpté à la manière d’un bloc de pierre jusqu’à obtenir la forme répondant au lieu, à l’usage et à l’expression désirée.
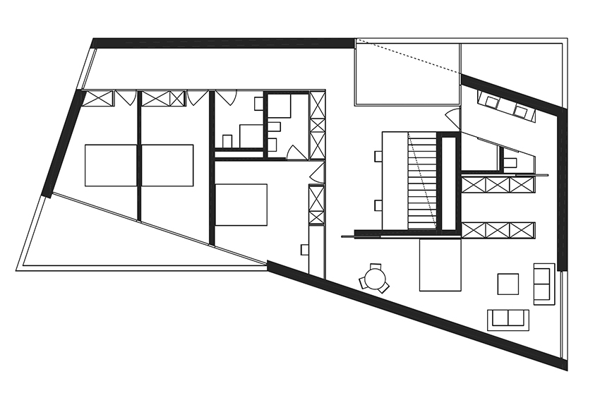
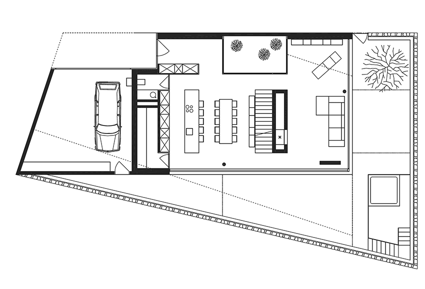
La villa se compose d’une plateforme, regroupant les locaux techniques et de rangement ainsi qu’un espace fitness et jacuzzi, formant un socle semi-enterré, surmonté d’un rez attribué à l’espace vie, avec les terrasses extérieures, la zone cuisine, salle à manger, séjour ainsi que les accès, alors que l’étage regroupe la zone nuit, avec les différentes chambres d’enfants, d’amis et parents ainsi que les salles d’eau et un espace bureau.
de Châtel-St-Denis.
Le projet s’imprègne du lieu et se construit avec son environnement naturel et bâti, largement ouvert côté ruisseau et vue, il se referme côté accès et village. Le volume est travaillé, découpé, sculpté à la manière d’un bloc de pierre jusqu’à obtenir la forme répondant au lieu, à l’usage et à l’expression désirée.
La villa se compose d’une plateforme, regroupant les locaux techniques et de rangement ainsi qu’un espace fitness et jacuzzi, formant un socle semi-enterré, surmonté d’un rez attribué à l’espace vie, avec les terrasses extérieures, la zone cuisine, salle à manger, séjour ainsi que les accès, alors que l’étage regroupe la zone nuit, avec les différentes chambres d’enfants, d’amis et parents ainsi que les salles d’eau et un espace bureau.
AUTRES PROJETS EN RELATION
Mandataires
Entreprises
Situation
VILLA CHÂTEL1618 Châtel-St-Denis
VD / Suisse