/ Projets / VILLA CLOS-ALPESTRE
GE / 1222 Vésenaz

VILLA CLOS-ALPESTRE

Type de construction
Villa, Transformation
Statut
Projet réalisé
Projet
2020
Photos
Dyod.com

Présentation

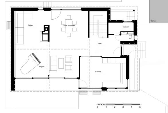
Normes et esthétique actuelles, volumétrie inchangée. La maison se situe en zone villa (5) de la commune de Collonge-Bellerive, sur une parcelle éloignée de toute nuisance mais proche du village. Cette situation et l’exposition sud-ouest avec une vue dégagée ont convaincu les propriétaires à acheter cette parcelle et la maison en bois préfabriquée des années 70 qui s’y trouvait afin d’en faire leur domicile. La parcelle avait été achetée auparavant par des promoteurs désirant y bâtir plusieurs villas mais qui se sont heurtés, lors de la demande d’autorisation, à l’opposition de tout le voisinage. Ils se sont donc résolus à revendre aux propriétaires actuels qui se sont engagés à ne laisser qu’une villa sur cette parcelle, pour leur propre usage. L’autorisation de transformation demandée n’a ainsi soulevé aucune opposition. Les propriétaires, ayant décelé le potentiel de cette ancienne villa, ont décidé d’en faire leur résidence principale en lui apportant diverses modifications afin de lui donner un aspect plus contemporain et conforme aux demandes actuelles de confort. Au rez-de-chaussée, la cuisine a été ouverte sur l’entrée et le séjour en renforçant le plancher bois sur rez par des poutrelles et poteaux métalliques afin d’obtenir un espace très ouvert. A l’étage, la répartition des chambres a elle aussi été quelque peu remaniée afin de répondre aux besoins des propriétaires et de leur famille. Une suite parentale a été créée ainsi que trois chambres et de nouvelles salles d’eau afin de répondre aux standards actuels d’une telle habitation. La maison, inhabitée durant un certain temps et ayant une structure des années 70 très légère, demandait une transformation et une mise à niveau importante. Avec des changement minimes (forme des fenêtres, amélioration de la luminosité, amélioration de l’isolation phonique entres les étages, isolation thermique des façades et du toit ainsi que le changement du système de chauffage) la maison a été mise en adéquation avec son temps du point de vue du dessin (pratiquement sans devoir déplacer de mur interne) et parfaitement conforme au standard de qualité de vie et d’efficience énergétique d’aujourd’hui. Cela a été possible car la typologie existante était déjà bien étudiée. Les ouvertures au rez-de-chaussée ont été modifiées et agrandies de façon à obtenir des vues intéressantes sur les différentes parties du jardin et à l’étage un long bandeau vitré éclaire les trois chambres d’enfants alors que la chambre parentale jouit d’une grande baie vitrée et d’une terrasse couverte. Les salles d’eau profitent également toutes à présent d’un éclairage naturel. L’ancienne structure des façades, extrêmement légère, a été renforcée au rez-de-chaussée comme à l’étage afin de supporter le poids des nouvelles fenêtres en profilés d’aluminium à coupure de pont thermique et triple vitrage. Toutes les façades ont ensuite été isolées par l’extérieur et l’isolation ainsi que l’étanchéité de la toiture refaites. L’ancien chauffage au mazout a été remplacé par une pompe à chaleur sol/eau avec des sondes géothermiques implantées dans le jardin.

Autres projets en relation

  • POSTE DE COUPLAGE
    VD / 1032 Romanel-sur-Lausanne
  • RUE DE LA MORÂCHE 3
    VD / 1260 Nyon
  • RÉSIDENCE BOIS-CARRÉ
    GE / 1255 Veyrier
  • Situation

    VILLA CLOS-ALPESTRE
    Clos Alpestre
    1222 Vésenaz
    GE / Suisse

    Vous êtes un entrepreneur et vous souhaitez figurer aux premières places de votre métier dans cet annuaire ?

    Contactez-nous